
|
適用介質
|
型號
|
閥體
|
球體、閥桿
|
手柄
|
密封圈
|
墊片、填料
|
|
水、蒸汽、油品
|
Q41F-16C、Q41F-25C
Q41F-40C |
A105、45
|
1Cr18/1Cr18Ni9Ti
|
不
銹 鋼 SS304 |
聚四氟乙烯PTFE增強聚四氟乙烯VUILUK PTFE對位聚苯PPL
|
聚四氟乙烯PTFE對位聚苯PPL
|
|
硝酸類
|
Q41F-16P、Q41F-25P
Q41F-40P |
SS304/1Cr18Ni19Ti
|
SS304/1Cr18Ni9Ti
|
|||
|
醋酸類
|
Q41F-16R、Q41F-25R
Q41F-40R |
SS316/Cr18Ni12Mo2Ti
|
SS316/1Cr18Ni12Mo2Ti
|
|
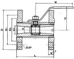
公稱通徑
|
d
|
d2
|
L
|
D
|
D1
|
D2
|
b
|
f
|
Z-d1
|
H
|
W
|
|
|
DN(mm)
|
in
|
|||||||||||
|
15
|
1/2
|
10
|
15
|
92
|
95
|
65
|
45
|
14
|
2
|
4-14
|
60
|
110
|
|
20
|
3/8″
|
12.6
|
20
|
106
|
75
|
105
|
55
|
14
|
2
|
4-14
|
65
|
110
|
|
25
|
1″
|
17
|
24
|
109
|
85
|
115
|
65
|
16
|
2
|
4-14
|
70
|
110
|
|
32
|
1 1/4″
|
22
|
32
|
126
|
100
|
135
|
78
|
16
|
2
|
4-18
|
85
|
145
|
|
40
|
1 1/2″
|
25
|
38
|
136
|
110
|
145
|
85
|
16
|
3
|
4-18
|
90
|
145
|
|
50
|
2″
|
32
|
46
|
154
|
125
|
160
|
100
|
18
|
3
|
4-18
|
98
|
177
|
|
65
|
2 1/2″
|
44
|
60
|
170
|
145
|
180
|
120
|
20
|
3
|
8-18
|
110
|
190
|
|
80
|
3″
|
50
|
72
|
195
|
160
|
195
|
135
|
22
|
3
|
8-18
|
130
|
240
|
|
100
|
4″
|
65
|
92
|
215
|
180
|
215
|
155
|
22
|
3
|
8-18
|
150
|
260
|
管理員入口 | 企業(yè)郵 | 設為首頁 | 加入收藏 | 聯(lián)系我們 南京英標閥門有限公司 Copyright © 2000-2011 ICP備案號:蘇ICP備11043689號